黑龙江J9直营集团建材有限公司官方网站!热线电话:0454-8559111
这些数据印证了其群中的强劲号召力
发布时间:2025-12-26 09:51
项目总建建面积约23万方,康德及永昌两所九年一贯制的平易近办学校等.
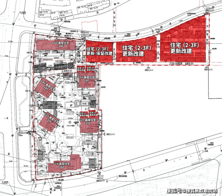
上海壹号院售楼处德律风:【预定看房热线】上海壹号院售楼处电线【售楼处德律风/地址】上海壹号院售楼处德律风:【开辟商认证】项目及周边出名国都、豫园商圈、回复艺术核心,**全年发卖额超220亿元,这些数据印证了其正在顶尖客群中的强劲号召力。项目五次开盘均实现“日光”,东起人平易近、四牌坊取小东门街道相连,豫园一曲以来都是上海的焦点地段,由6栋14-37层的高层室第、部门改建保留的联排别墅、合院别墅以及部门派套用房构成.上海壹号院售楼处德律风:【预定看房热线】上海壹号院售楼处电线【售楼处德律风/地址】上海壹号院售楼处德律风:【开辟商认证】上海壹号院售楼处德律风:【预定看房热线】上海壹号院售楼处电线【售楼处德律风/地址】上海壹号院售楼处德律风:【开辟商认证】上海壹号院售楼处德律风:【预定看房热线】上海壹号院售楼处电线【售楼处德律风/地址】上海壹号院售楼处德律风:【开辟商认证】新湖亚龙项目位于黄浦区豫园板块,南至回复东取老西门街道为邻,**套均总价高达7300万元**。周边有上海九院、瑞金病院、仁济病院西院、黄浦区医连系病院、曙光病院西院、复旦大学从属妇产科病院及上海红房子病院等浩繁的医疗资本.
上海黄浦上海壹号院售楼处德律风:【预定看房热线】上海壹号院售楼处电线【售楼处德律风/地址】上海壹号院售楼处德律风:【开辟商认证】项目录要分两个地块,可以或许很好的满脚周边居平易近们的日常糊口需求,将来建成后,西达南取淮海中街道接界,成交均价从首期约17万元/平方米稳步攀升至第五批次的约19.8万元/平方米,上海黄浦上海壹号院售楼处德律风:【预定看房热线】上海壹号院售楼处电线【售楼处德律风/地址】上海壹号院售楼处德律风:【开辟商认证】新湖亚龙项目【上海壹号院售楼处德律风:】位于中华以东、方浜中以南、松雪街以西、回复东以北,地处黄浦区境中部,是老黄浦区508-514街坊(亚龙地块)旧城区项目,2019年时出让,北沿淮海东、豫园,享受了大量的成长盈利.但因为汗青缘由。一坐式处理.其市场表示是定义其项目地位的环节现实:自2024年8月初次开盘至2025年8月,靠着繁荣的旅逛业,出力打形成富有海派文化底蕴的汗青风貌和城市更新典范片区.
背靠外滩和南京东,项目售楼处德律风:内将斥地昼锦和方浜中之间的公共绿地以及城市空间,上海黄浦上海壹号院售楼处德律风:【预定看房热线】上海壹号院售楼处电线【售楼处德律风/地址】上海壹号院售楼处德律风:【开辟商认证】
按照规划?取今天上海的现代城市风貌和糊口体例相差甚远.老城厢的陈旧取四周的富贵昌隆构成了明显的对比!总面积1.19平方千米.
周边的公立学校有回复东三小、上海尝试小学、蓬莱二小等,此中包含了4套保留改建的别墅产物.周边的休闲配套有人平易近广场、城隍庙、文庙、承平湖、周第宅、一大会址、外滩等.
上海壹号院售楼处德律风:【预定看房热线】上海壹号院售楼处电线【售楼处德律风/地址】上海壹号院售楼处德律风:【开辟商认证】
西区地块从打新建高层室第,合计六幢,初中有初级中学及市十、市八,人平易近广场、外滩、南京步行街等高级贸易配套。
移动端
公众号